Make a Call : +8615559090996
Get A Estimate : senko@fjsenko.com
L'empileur intelligent de briques et de blocs est un équipement d'empilage de briques conçu grâce à une technologie brevetée, avec des espaces réservés pour l'agencement de l'empilage. Ce système d'empilage de briques/blocs résout les problèmes liés à l'empilage manuel, à la forte intensité de main-d'œuvre, à la faible productivité et à la faible mécanisation du chargement et du déchargement des produits finis, rencontrés sur les lignes de production de blocs classiques. Cet équipement représente le système d'empilage rapide le plus récent. Généralement, il est installé indépendamment, à proximité de la chambre de séchage des produits. Pour les produits ayant atteint leur pleine maturité, l'empilage peut se faire sur place ou en continu sur la ligne de production de blocs.
Empileur de briques/blocs entièrement servo-commandé (Modèle : MDJ-Z1200A))
La machine complète se compose d'un élévateur à palettes pour briques/blocs durcis, d'une unité d'empilage principale, d'un retourneur de palettes, d'un palettiseur, etc., permettant ainsi la réalisation de palettes sans fond pour l'empilage des briques. Entraînée par des servomoteurs et un système pneumatique, elle est également équipée d'un variateur de fréquence électrique. Cette machine se caractérise par son intelligence, sa stabilité, sa rapidité, sa faible consommation d'énergie et son faible encombrement. Hautement automatisée, elle est pilotée par une armoire électrique, ce qui permet de réduire les coûts de main-d'œuvre tout en améliorant l'efficacité et la productivité.

Machine de levage pour palette chargée de briques/blocs
Les palettes de briques/blocs durcis, acheminées par chariot élévateur, sont transportées vers la zone de stockage des palettes. L'engin de levage saisit les palettes de briques couche par couche, par l'avant et par l'arrière, et les envoie sur le convoyeur avant le déconditionnement des palettes.

Plateau tournant 1 et poussoir de briques/blocs
Le poussoir 1 déplace les briques/blocs de la palette vers le plateau tournant 1. Ce dernier peut pivoter à 90° pour s'adapter au sens d'empilage souhaité, tandis que le poussoir 2 les achemine vers la machine d'empilage principale.

Machine d'empilage principale
Le poussoir 3 pousse les briques/blocs alimentés vers le plateau de palettisation. Ce dernier avance jusqu'à la position d'empilage, puis le poussoir 4 descend et arrête les briques/blocs sur le plateau. Le plateau se retire alors, et les briques/blocs tombent et s'empilent successivement, formant ainsi une palette. Le poussoir 4 est commandé par un servomoteur, ce qui permet de réserver les emplacements pour chariot élévateur. Une fois la palette formée, il descend jusqu'au fond, où des rouleaux acheminent la palette de briques empilées vers le cerclage horizontal et vertical, puis l'emballage avec des feuillards en acier et en plastique PET.

Pousseur/retourneur de palettes
Une fois les briques séparées, la palette vide est acheminée par une chaîne. Un mécanisme de retournement peut être installé sur le convoyeur à chaîne pour retourner la palette vide, qui est ensuite poussée dans la palettiseur.

Machine de palettisation/machine d'empilage de palettes
Les palettes vides sont introduites une à une et descendent pour être empilées. Une fois la pile constituée, elle descend jusqu'au fond et le convoyeur achemine les palettes empilées vers l'extérieur, où elles sont prises en charge par un chariot élévateur.
Affichage de la structure :
Informations sur les paramètres :
| Article | Spécification |
| Taille de l'équipement | 16000×7000×3200mm |
| Puissance totale | 33 kW |
| Hauteur maximale du produit | 200 mm (personnalisable) |
| Gamme de tailles de plateaux | 1400-850 mm (Personnalisable) |
| Forme d'empilement | Empilement en croix rectangulaire ou carré |
| Cycle d'empilement | 18 à 23 secondes par couche |
| Taille d'empilement maximale | 1200×1200×1450 mm |
| Puissance du moteur de l'élévateur à piles | 7,5 kW |
| Puissance du moteur de poussée (Première, deuxième, troisième poussée) | 2,2 kW |
| Puissance du moteur de plateau tournant empilable | 1,1 kW |
| Puissance du moteur du plateau tournant | 0,75 kW |
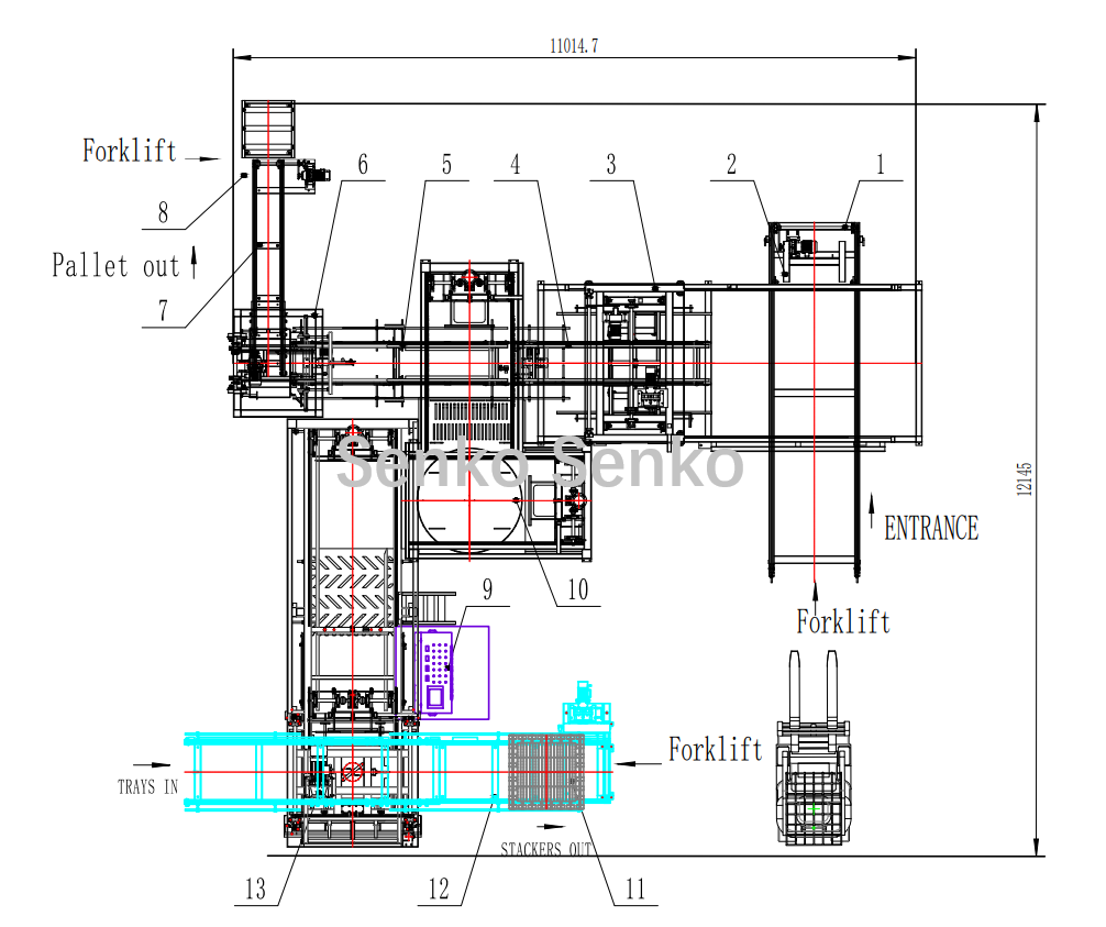
Plan du projet

| 1. Cadre de déchargement de palettes | 2. Recyclage des cadres | 3. Élévateur à palettes | 4. Convoyeur à palettes | 5. Convoyeur à palettes vides |
| 6. Machine de palettisation | 7. Convoyeur à palettes | 8. Rouleau de convoyage | 9. Armoire de commande électronique | 10. Platine vinyle |
| 11. Plateau d'empilage de briques/blocs | 12. Récepteur de pile | 13. Machine d'empilage principale |
Avantages du produit :
1. Automatisation efficace : remplace complètement les opérations manuelles, effectue automatiquement la séparation, l'empilage et le transfert, économise la main-d'œuvre et améliore l'efficacité de la production.
2. Trou de chariot élévateur réglable : des trous pour chariot élévateur sont prévus pour chaque couche de produits, ce qui facilite le chargement et le déchargement ultérieurs par chariot élévateur et permet de réduire les coûts liés aux palettes.
3. Fonctionnement entièrement automatique : non affecté par les conditions météorologiques, fonctionnement efficace sur une longue durée, adapté à divers environnements de production.
4. Faibles dommages et chargement/déchargement efficace : chargement et déchargement successifs par chariot élévateur, grande efficacité et absence de dommages aux briques, le résultat est remarquable.
5. Agencement flexible et fonction de rotation : rotation avant le trou, agencement libre des moules, pour répondre aux différents besoins des produits.
Produits durcis empilés :

TAGS :