Make a Call : +8615559090996
Get A Estimate : senko@fjsenko.com
UNligne de production de briques à partir de déchets solides Ce système transforme les déchets solides en briques de construction. Il utilise une technologie de vibration à modulation de fréquence et d'amplitude pour obtenir des briques recyclées non cuites à haute densité et des économies d'énergie. Notre machine de fabrication de briques à partir de déchets peut produire différents types de briques recyclées non cuites et être moulée selon les besoins.
Ligne de production de briques/blocs à partir de déchets solides (Modèle:GFZX-2000)
Ligne de production de briques entièrement automatisée, ligne de production de briques à partir de déchets solides, ligne de production de déchets solides de construction.
Présentation des projets :
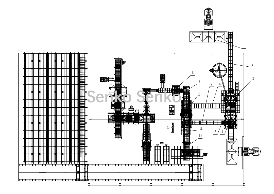
Solution un : TLe four de cuisson possède une ouverture latérale et est parallèle aux autres équipements.

| 1. Machine de dosage | 2. Convoyeur de matières premières | 3. Mélangeur de matière première | 4. Mélangeur de pigments | 5. Écran vibrant | 6, Convoyeur de mélange de base |
| 7. Convoyeur de mélange de pigments | 8. Chargement de palettes | 9, Alimentateur de palettes | 10, Machine de formage | 11, Convoyeur | 12. Machine d'empilage |
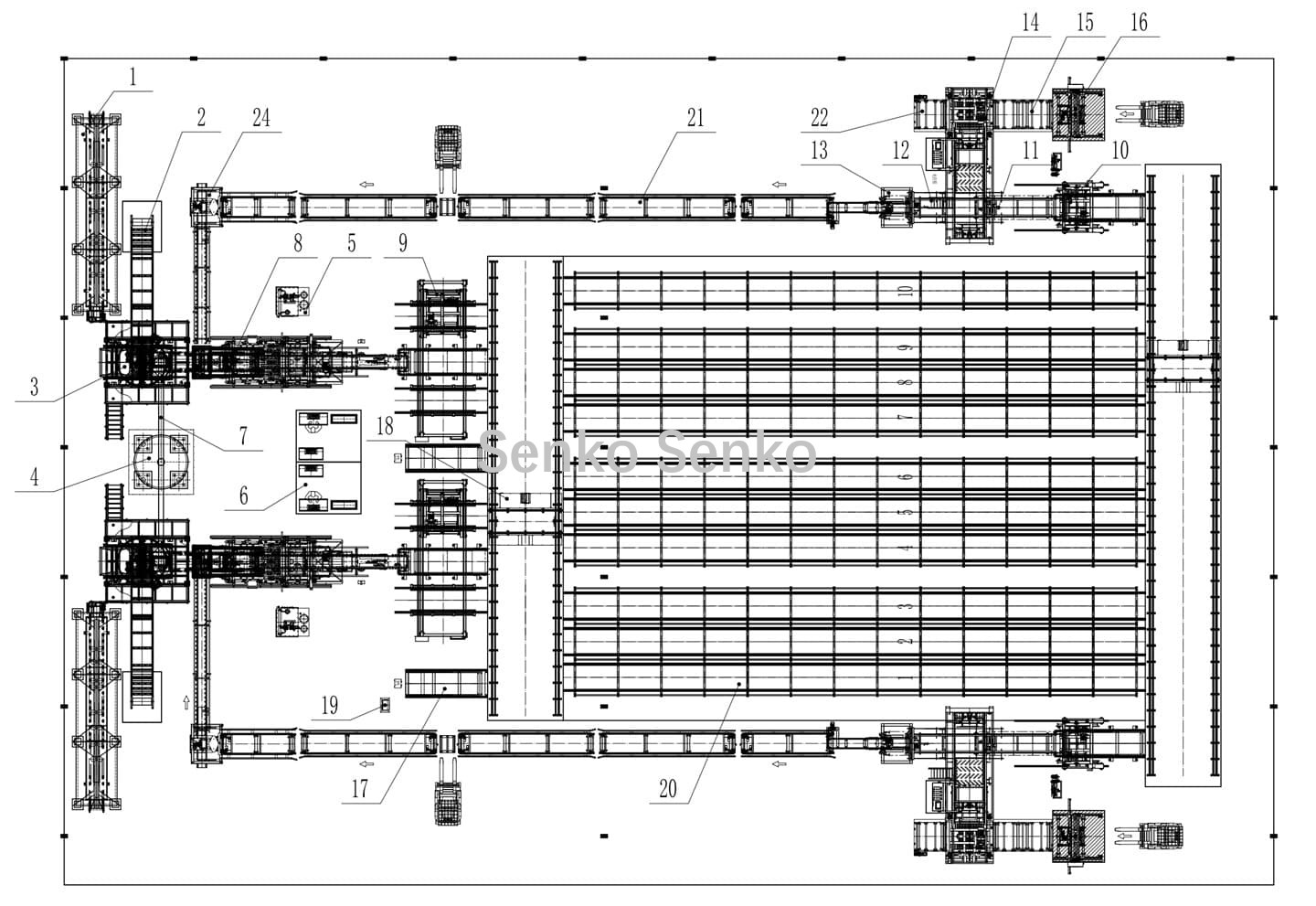
Deuxième solution : Le four de cuisson possède une entrée et une sortie. L’entrée du four de cuisson est orientée vers les autres machines.

| 1. Machine de dosage | 2. Convoyeur de matériaux de base | 3. Mélangeur | 4, Silo à ciment | 5, Réservoir à mazout |
| 6, Armoire de commande électronique | 7, Convoyeur à spirale | 8. Machine de formage | 9, Palettiseur avec brique | 10, Élévateur à palettes |
| 11, Séparateur de palettes de briques | 12, Convoyeur à palettes vides | 13. Palettiseur sans brique | 14, Empileur de briques | 15, Convoyeur à piles |
| 16. Machine à dénuder rotative inférieure | 17, Chariot de transfert | 18,RGV | 19, Station de recharge | 20, Four de séchage |
| 21. Système de recyclage des palettes vides | 22, Support de rangement pour plateaux | 24, Chargement hydraulique de palettes |
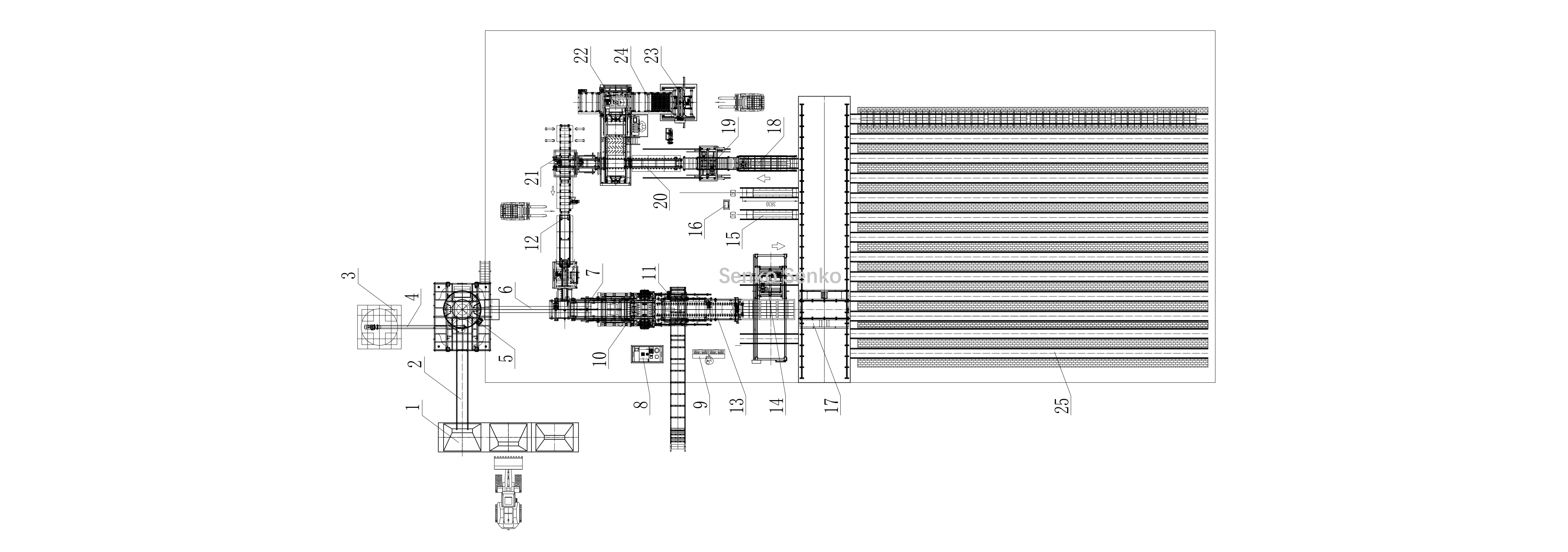
Solution trois :TLe four de cuisson possède une ouverture sur un côté, qui fait face aux autres machines.

| 1. Machine de dosage | 2. Convoyeur de matériaux de base | 3, Réservoir de stockage de matériaux de base | 4. Convoyeur à spirale | 5. Mélangeur de matériaux de base |
| 6, Convoyeur de mélange Bas | 7. Chargement de palettes | 8, Station hydraulique | 9. Système de contrôle électronique | 10, Alimentateur à palettes |
| 11. Machine de formage | 12. Recyclage des palettes | 13, Transfert de palettes | 14, Palettiseur | 15, chariot de transfert |
| 16, Station de recharge | 17, RGV | 18, Convoyeur à palettes | 19, Élévateur à palettes | 20, Convoyeur à palettes de briques |
| 21, Palettiseur | 22, Machine à empiler les briques | 23, Garniture rotative inférieure | 24, Convoyeur à piles | 25, Four de séchage |
Avantages du produit :
1. Les matières premières sont peu coûteuses, largement disponibles et leur transport est peu onéreux. Les machines à fabriquer des briques sont relativement peu coûteuses et bénéficient du soutien des politiques nationales, ce qui engendre d'importants avantages socio-économiques.
2. Les briques produites présentent une résistance élevée et de bonnes performances, ce qui permet d'économiser efficacement les ressources foncières et de promouvoir l'ajustement structurel de l'industrie des matériaux de construction.
Scénarios d'application

TAGS :