Make a Call : +8615559090996
Get A Estimate : senko@fjsenko.com
UNLigne de production de blocs de mur et de sol avec supports à briques en acier Cette combinaison d'équipements automatisés est utilisée dans la production de carreaux muraux et de sol. Elle permet un fonctionnement continu du processus de production, incluant une série d'étapes allant du positionnement des carreaux à leur conditionnement, en passant par le transport, le séchage et la finition, améliorant ainsi l'efficacité de la production et la qualité des produits. Grâce à un système de séchage, elle utilise un convoyeur motorisé pour transporter les carreaux muraux et de sol, ainsi qu'une pompe à eau externe reliée à une source d'eau de séchage et à des buses de séchage. Un ventilateur équipé de pales élimine rapidement l'eau de la surface des carreaux.
Ligne de production de blocs de mur et de sol avec supports à briques en acier(Modèle:QDZX-2000)
Ligne de production de briques entièrement automatisée, ligne de production de carreaux muraux et de sol.
Présentation des projets :
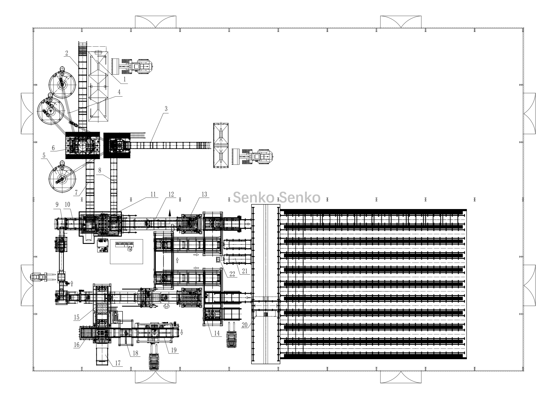
Solution 1 : Le four de cuisson ne possède qu'une seule ouverture, orientée vers le reste de la machine.

| 1. Machine de dosage | 2. Convoyeur de matériaux de base | 3. Convoyeur de matériaux de base | 4. Convoyeur à spirale | 5. Convoyeur à spirale | 6,Mixeur |
| 7. Convoyeur de matériaux de base | 8. Convoyeur de matériaux de base | 9, Alimentateur de palettes hydraulique | 10, Alimentateur à palettes | 11. Machine de formage de blocs | 12. Convoyeur à blocs |
| 13, Élévateur à palettes | 14, Transfert sur rack | 15, Empileur de blocs | 16, Plateau de rangement en bois | 17. Machine d'emballage sous film plastique | 18. Machine à poser les films |
| 19, Machine de dénudage rotative supérieure | 20,RGV | 21,Transfert chariot | 22, Station de recharge |
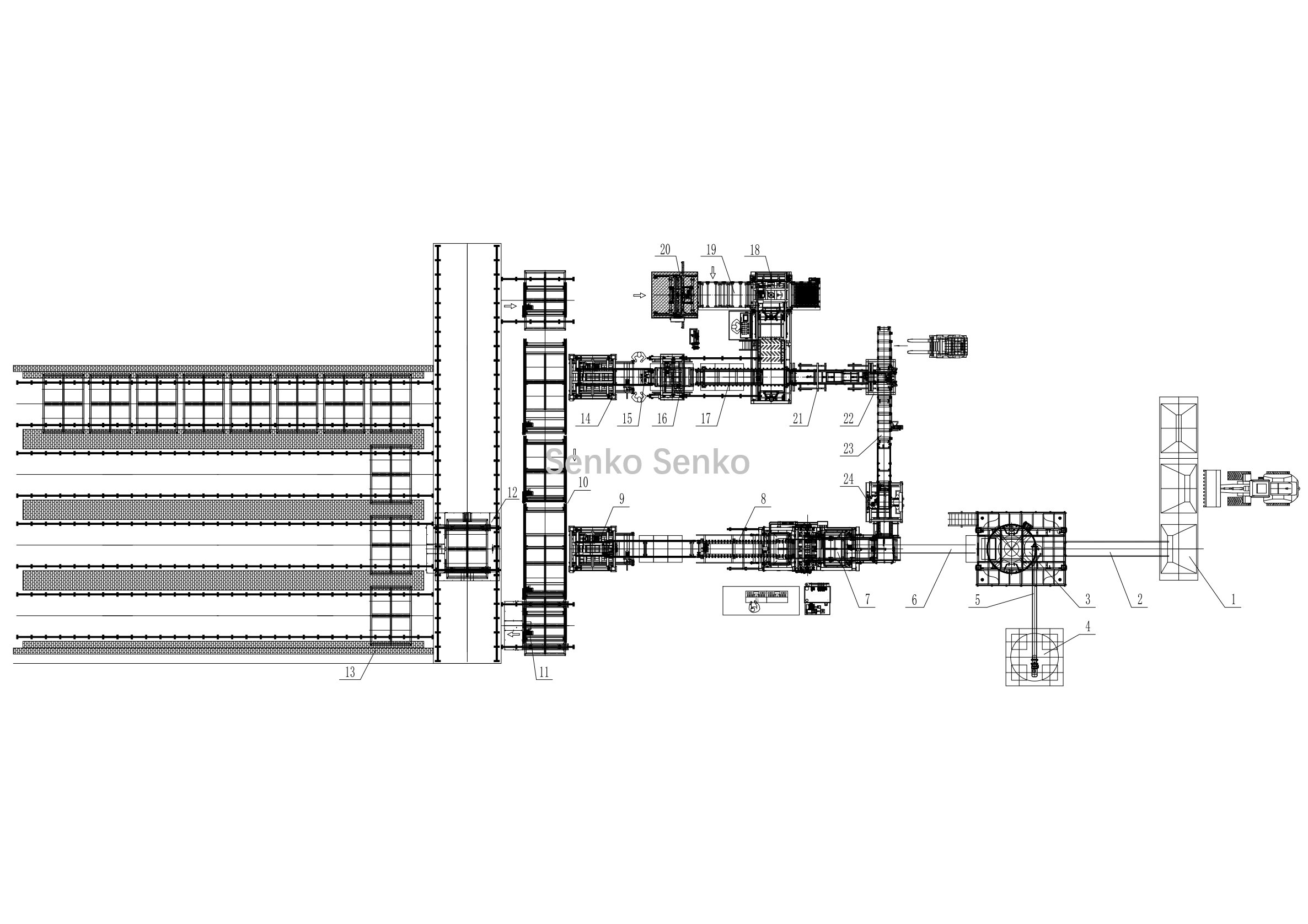
Solution deux :Le four de cuisson ne possède qu'une seule ouverture latérale, orientée vers le reste de la machine.

| 1. Machine de dosage | 2. Convoyeur de matériaux de base | 3. Mélangeur | 4, Silo à ciment | 5, Convoyeur à ciment | 6, Convoyeur à mélange |
| 7. Machine de formage | 8, Convoyeur à palettes | 9. Chargement de palettes dans le rayonnage | 10, transfert sur rack | 11, alimentation en rack sur RGV | 12, chariot de transfert RGV |
| 13, Four de séchage des blocs | 14. Déchargement de palettes du rayonnage | 15, Convoyeur avant ascenseur | 16, Élévateur à palettes | 17. Séparateur de blocs et de palettes | 18, Machine d'empilage de blocs |
| 19, Convoyeur à piles | 20, Machine de déballage | 21, Convoyeur à palettes vides | 22, palettiseur | 23, Convoyeur à palettes | 24, Chargement de palettes |
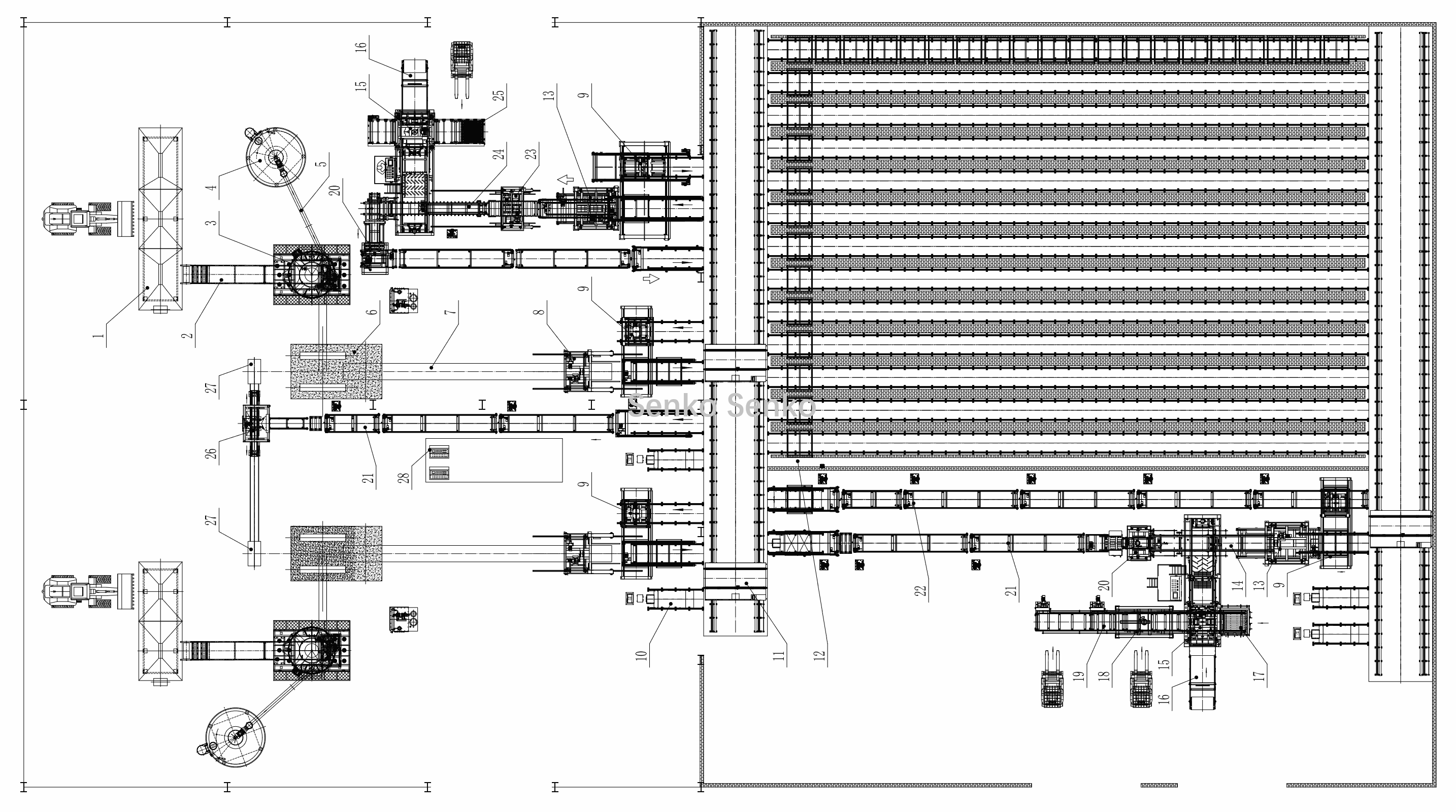
Solution trois : Un four de cuisson avec deux ensembles de machines de formage et d'emballage pour différents types de produits.

| 1. Machine de dosage | 2. Convoyeur de matériaux de base | 3. Mélangeur | 4, Silo à ciment | 5, Convoyeur à spirale | 6. Machine de formage |
| 7, Convoyeur à palettes de briques | 8. Alimentation des palettes sur le rayonnage | 9, Unité de transfert de rack | 10, Chariot de transfert | 11,RGV | 12, Four de séchage |
| 13, Déchargement de la palette du rayonnage | 14. Séparateur de briques et de palettes | 15, Empileur de briques | 16, Machine à poser les films | 17, Cadre de rangement pour plateau | 18, Unité d'emballage sous film |
| 19, Machine à dénuder | 20, Palettiseur vide | 21, Convoyeur à palettes | 22, Convoyeur à rack vide | 23, Élévateur à palettes Brick | 24, Convoyeur de palettes de briques |
| 25, Machine à dénuder | 26. Alimentation de la ligne avec des palettes | 27, Cadre de stockage de palettes |
Avantages du produit :
1. Améliorer l'efficacité de la production : les processus de production automatisés réduisent l'intervention manuelle et l'intensité du travail, permettant une production continue et efficace, ce qui augmente considérablement la production de carreaux muraux et de sol ;
2. Garantir la qualité du produit : un contrôle précis du chargement, du transport et du traitement des carreaux, ainsi qu’un environnement de séchage stable, contribuent à garantir les indicateurs de qualité des carreaux muraux et de sol, tels que la précision dimensionnelle, la planéité et la résistance, et à réduire le taux de défauts.
3. Réduire les coûts de production : Bien que l'investissement initial en équipements soit important, à long terme, il permet de réduire efficacement le coût de production par unité de produit en améliorant l'efficacité de la production et en réduisant les coûts de main-d'œuvre et le gaspillage de matières premières ;
4. Améliorer la sécurité de la production : Cela réduit le contact direct entre les humains et les processus de production dangereux tels que les opérations à haute température et à grande vitesse, réduit l'incidence des accidents du travail et améliore la sécurité du processus de production.
Scénarios d'application

TAGS :